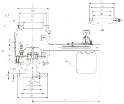
GA41H A51H單杠桿安全閥



單杠桿安全閥主要零部件材料說明:
GA41H-16C/25/40 A51H-16C/25/40單杠桿安全閥除杠桿(材料為碳鋼),重錘(材料為鑄鐵),其余材料均和A41H-16C型彈簧式安全閥相同。GA42H型安全閥適用于溫度≤450℃的電站鍋爐和壓力容器上,防止壓力超過允許最高值,介質可為蒸汽、空氣
單杠桿安全閥外形尺寸和連接尺寸
|
口徑 |
尺寸 |
|||||||||||||||
|
do |
L |
L1 |
D |
K |
g1 |
f |
b |
z-?d |
DN' |
D1 |
K1 |
g2 |
b1 |
f' |
z-?d1 |
|
|
25 |
20 |
100 |
85 |
115 |
85 |
65 |
2 |
16 |
4-14 |
25 |
115 |
85 |
65 |
16 |
2 |
4-14 |
|
32 |
25 |
115 |
100 |
140 |
100 |
78 |
2 |
18 |
4-18 |
32 |
140 |
100 |
78 |
18 |
2 |
4-18 |
|
40 |
32 |
120 |
110 |
150 |
110 |
85 |
3 |
18 |
4-18 |
40 |
150 |
110 |
85 |
18 |
3 |
4-18 |
|
50 |
40 |
135 |
120 |
165 |
125 |
100 |
3 |
20 |
4-18 |
50 |
165 |
125 |
100 |
20 |
3 |
4-18 |
|
80 |
65 |
160 |
135 |
200 |
160 |
135 |
3 |
20 |
8-18 |
80 |
200 |
160 |
135 |
20 |
3 |
8-18 |
|
100 |
80 |
170 |
160 |
220 |
180 |
155 |
3 |
22 |
8-18 |
100 |
220 |
180 |
155 |
22 |
3 |
8-18 |
|
150 |
125 |
205 |
195 |
285 |
240 |
210 |
3 |
24 |
8-23 |
150 |
285 |
240 |
210 |
24 |
3 |
8-23 |
|
200 |
150 |
240 |
230 |
340 |
295 |
265 |
3 |
26 |
12-23 |
200 |
340 |
295 |
265 |
26 |
3 |
12-23 |
注:PN2.5、PN4.0MPa尺寸參照A41H-25/40型尺寸表。
三精閥門售后服務承諾
對于貴公司在三精閥門訂購閥門產品,我廠在售后服務方面作如下承諾:
一、我公司對產品質量實行三包,即:包質、包換、保修;
二、合同簽訂后,保證保質、保量,按時交貨;
三、本公司確保所提供閥門產品達到合同指標
四、對于需方的技術咨詢,隨時給予解答;
五、在交付設備時,本廠向需方交付以下資料:發貨清單、產品合格證、產品樣本、產品使用說明書、技術資料;
當接到用戶反應質量問題的信函或電話后,保證24小時內作出答復最快解決問題。
三精閥門訂購須知
1、根據使用場所、用途,且了解有關法規、規格、標準、方針、許用認可后既可選用適合各種要求的閥
2、確認閥門的工作條件、使用規格、適用介質、對應材質、操作方式、工作壓力、介質溫度;
3、確定與管道相匹配的公稱通徑:DN(mm)、NPS( " );
4、確定與管道相連接方式:法蘭式、內(外)螺紋式、焊接式、對夾式、卡箍式、卡套式等;
5、確定閥門操作的驅動方式:手動、蝸輪蝸桿傳動、氣動、電動、液動、電磁動、電液動等;
6、確認閥門的類型:球閥、閘閥、蝶閥、截止閥、止回閥、調節閥、電磁閥、安全閥、減壓閥、疏水閥、針型閥、角座閥、隔膜閥、平衡閥、過濾器及其它特種閥;
7、確定閥門的使用形式:開關型、調節型、安全型、自動型、排放型等;
8、確定閥門殼體及內件的材料:碳鋼、合金鋼、不銹鋼、球墨鑄鐵、灰鑄鐵、銅合金、鋁合金、塑料等;
9、確定閥門的密封性能要求、密封等級或密封泄漏量;
10、確定閥門的防護涂層要求、包裝要求、運輸要求;
11、特殊需要的閥門還應確定:結構長度、閥門高度、外型尺寸、流阻、排放能力、流量特性、防護等級、防爆性能等參數;
12、確定閥門的安裝位置及姿勢。



